Ropeland Way, Horsham, West Sussex.

Guide Price £335,000

Available
Bedrooms

2

bedrooms

Bathrooms

1

bathroom

Receptions

1

reception

NO FORWARD CHAIN! A well presented two bedroom house situated on the North side of Horsham and enjoying a 'courtyard' feel with a wide block paved area to the front with a garage, and delightful South West facing rear garden.
  • 2 BEdDOOMs
  • GOOD ACCESS TO THE A264 AND BEYOND
  • NO FORWARD CHAIN
  • SOUTH WEST BACKING REAR GARDEN
  • SINGLE GARAGE OPPOSITE
  • 'COURTYARD' STYLE FRONTAGE
  • NORTH HORSHAM LOCATION
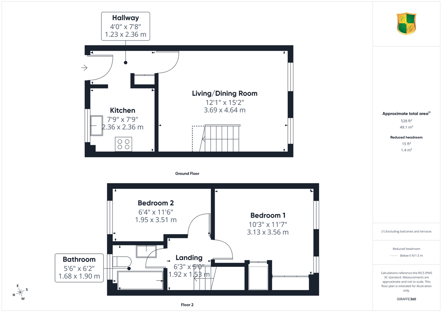
Courtney Green are delighted to offer for sale this well presented two bedroom house built in 1997 by McLean Homes. The property is situated on the North side of Horsham and enjoys a 'courtyard' feel with a wide block paved area to the front and delightful South West facing rear garden. The house, which is arranged over two floors, briefly comprises an entrance hall, with Oak flooring, bespoke fitted kitchen with Oak worktops and built in appliances, a good sized living/dining room with Oak floorings and patio doors opening to the rear garden. Upstairs there are two bedrooms, the principal bedroom having built in wardrobes, and there is a bathroom with a modern white suite. Other features of the home include gas radiator central heating, double glazing and UPC external facias. This property has the advantage of a garage and parking to the front, and the property is offered for sale with the benefit of no ongoing chain.

The accommodation comprises:

UPVC double glazed Front Door to

Entrance Hall
Oak flooring, covered radiator, cloaks cupboard.

Kitchen
Double glazed front aspect. Fitted with a range of base and wall mounted cupboards and drawers in cream shaker finish, having wooden worktop surfaces incorporating a stainless steel sink unit with chromium monobloc tap, SMEG gas hob with electric oven under, concealed filter hood over, ceramic tiled splashback, pelmet lighting, space for a fridge/freezer, kickstart floor heater, space and plumbing for washing machine, Potterton Suprema gas fired boiler.

Living/Dining Room
Double glazed rear aspect and double glazed French doors to the rear garden. Oak flooring, two radiators. Staircase rising to the

First Floor Landing
Pull down hatch to part boarded and insulated loft space.

Bedroom 1
Double glazed dual rear aspect. Radiator, mirror fronted double width wardrobe cupboard, airing cupboard housing factory lagged tank with immersion heater and shelving.

Bedroom 2
Double glazed front aspect, radiator.

Bathroom
Frosted double glazed front aspect. Fitted with a white suite comprising a panel bath with chromium mixer tap and shower attachment, wall bracket and hand shower, low level WC, wall mounted wash hand basin with tiled splashback, chromium mixer tap, radiator, localised tiling, downlighting, extractor fan.

OUTSIDE

To the rear of the property is a South Westerly backing rear garden, being in the region of 40ft long with a shaped brick hedge patio area, area of lawn with shrub borders enclosed by panel fencing with gated rear access, outside light and tap, timber garden shed.

To the front of the property there is block paved forecourt with Garage metal up and over door, eaves storage space and parking to the front.

Council Tax Band - C

Referral Fees: Courtney Green routinely refer prospective purchasers to Nepcote Financial Ltd who may offer to arrange insurance and/or mortgages. Courtney Green may be entitled to receive 20% of any commission received by Nepcote Financial Ltd.

NOTE: These particulars are intended only as a guide to prospective Buyers/Tenants to enable them to decide whether to make further enquiries with a view to taking up negotiations but they are otherwise not intended to be relied upon in any way for any purpose whatsoever and accordingly neither their accuracy nor the continued availability of the property is in any way guaranteed and they are furnished on the express understanding that neither the Agents nor the Vendors are to be or become under any liability or claim in respect of their contents. Any prospective Buyer/Tenant must satisfy himself by inspection or otherwise as to the correctness of the particulars contained.

Floor Plan
Floor Plan
Floor Plan

EPC
EPC

Click to view : Brochure

Are you interested in viewing this property?

Please contact us…

Sales: 01403 252222 or Lettings: 01403 252200