Finians Field, Barns Green, Horsham, West Sussex.

£489,950

Available
Bedrooms

4

bedrooms

Bathrooms

1

bathroom

Receptions

2

receptions

A creatively enlarge four bedroom staggered end terraced house with flexible accommodation and situated in a well regarded and highly accessible village location.
  • FOUR BEDROOM STAGGERED END TERRACE IN WELL REGARDED VILLAGE
  • FLEXIBLE ACCOMMODATION WITH GROUND FLOOR 4TH BEDROOM
  • GENEROUS GROUND FLOOR ROOMS AND CONSERVATORY
  • MODERN FITTED KITCHEN
  • DOWNSTAIRS CLOAKROOM
  • THREE GOOD UPSTAIRS BEDROOM
  • BATH/SHOWER ROOM
  • EXTENSIVE PARKING & VERY PRIVATE GARDEN
  • REMAINDER OF STORAGE GARAGE
  • NO CHAIN
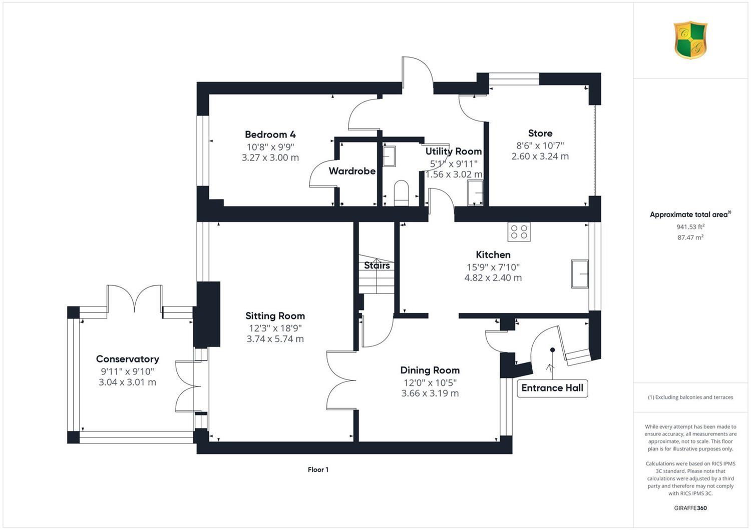
Courtney Green are pleased to be offering for sale this well presented and expertly enlarged four bedroom end terrace family residence situated in the popular village of Barns Green. The property has been designed to provide spacious and flexible living space for a growing family. On the ground floor a front door opens up to an entrance hall, with a door leading to a dining room with double doors opening to a spacious sitting room off which is a conservatory. There is a fitted light Oak kitchen/breakfast room off which is a separate utility room with downstairs cloakroom, and a good sized double bedroom overlooking the rear garden. On the first floor, there are three bedrooms and family bath/shower room. The property features walk-in wardrobe cupboards to all the double bedrooms, has double glazed replacement windows and a modern gas fired heating system to radiators. The property benefits from hard standing to the front which provides off road parking for four cars. There is also the useful remainder of the now storage/garage. To the rear, is a landscaped garden with wide areas of paved patio, designed for family fun and entertainment. The vendors sole agent Courtney Green strongly recommend and internal inspection of this delightful family home to appreciate it’s size and features. There will be no on-going chain.

SITUATION Barns Green has a village shop/post office, public house, church and large new primary school and there is also the excellent Sumners Ponds leisure park which has a café and restaurant. The larger village of Billingshurst is approximately 3 1/2 miles away. Horsham with its extensive range of shops and amenities including a leisure centre and swimming pool, theatre, cinema and golf courses is approximately 4 miles away. There are state and private schools within the catchment area and churches of various denominations. Nearby Christs Hospital with its mainline railway station and excellent Bluecoat leisure centre/swimming pool is about 2 miles away.

The accommodation comprises:

UPVC Double Glazed Front Door with sidelight to

Entrance Hall
Laminate wood flooring, radiator, door to

Dining Room
Double glazed front aspect, radiator, laminate wood flooring, downlighting. Double doors opening to the

Sitting Room
Double glazed rear aspect and double glazed French doors to the conservatory. Mock feature chimney breast with raised granite hearth built in designer gas fire, TV recess, laminate wood flooring.

Conservatory
Double glazed French door to the rear garden, ceramic tiled flooring with underfloor heating.

Kitchen/Breakfast Room
Double glazed front aspect. Fitted with a range of base and wall mounted cupboards and drawers in light Oak finish, having complementing worktop surfaces with an inset Franke 1 ½ bowl sink with chromium monobloc tap, space for a range cooker with a concealed extractor hood over, breakfast bar, integrated fridge, space for a dishwasher, pelmet lighting and downlighting, ceramic tiled splashback, radiator. Stable door to

Utility Room
Multi glazed stable door to outside. Fitted with a range of base and wall mounted cupboards and drawers in white Shaker style with butler sink, worktop surface with splashback, space and plumbing for washing machine and tumble dryer, downlighting, ceramic tiled flooring with underfloor heating.

Cloakroom Low level WC. Vanity unity with inset wash hand basin having chromium mixer tap having cupboard under, splashback, display shelf, extractor fan, downlighting, ceramic tiled flooring.

Bedroom 4 Double glazed rear aspect. Laminate wood flooring, downlighting, walk in wardrobe cupboard with down lighting, laminate flooring.

From the Utility Room there is a door to a Store with double glazed side aspect, power and light, metal up and over door.

From the Dining Room a turning staircase rises to the First Floor Landing, loft hatch with drop down ladder, access to loft space housing gas fired boiler, airing cupboard with hot water cylinder and shelving.

Bedroom 1 Double glazed front aspect, two wall light points, radiator, air conditioning unit, ceiling fan, downlighting, walk in cupboard with hanging rails and light.

Bedroom 2 Double glazed rear aspect, walk in wardrobe cupboard with hanging rails and shelves and light, radiator, laminate wood flooring, lighting.

Bedroom 3 Double glazed front aspect, radiator, downlighting.

Family Bath/Shower Room Twin frosted double glazed rear aspect, fitted with a white suite comprising panel bath with chromium tap and filler, vanity unit with inset wash hand basin with chromium mixer tap and cupboard under, WC with concealed cistern, two wall mounted towel warmers, corner shower cubicle with chromium thermostatic shower control, wall bracket and shower and over head drencher unit, fully tiled walls and flooring, downlighting, large mirror.

OUTSIDE

To the front of the property there is a wide driveway providing hardstanding for at least 4 vehicles.

Storage/Garage with up and over door, door to the house light and power. Gated access leads to the rear garden.

Gardens Neatly landscaped with wide stone path and patio leading to rear raised timber decking, area of lawn, larch lap and slatted wood fence surround. The rear garden enjoys a sunny aspect and a fair degree of privacy. Outside power.

Council Tax Band - D

Referral Fees: Courtney Green routinely refer prospective purchasers to Nepcote Financial Ltd who may offer to arrange insurance and/or mortgages. Courtney Green may be entitled to receive 20% of any commission received by Nepcote Financial Ltd.

Ref: 25/5770/28/03

NOTE: These particulars are intended only as a guide to prospective Buyers/Tenants to enable them to decide whether to make further enquiries with a view to taking up negotiations but they are otherwise not intended to be relied upon in any way for any purpose whatsoever and accordingly neither their accuracy nor the continued availability of the property is in any way guaranteed and they are furnished on the express understanding that neither the Agents nor the Vendors are to be or become under any liability or claim in respect of their contents. Any prospective Buyer/Tenant must satisfy himself by inspection or otherwise as to the correctness of the particulars contained.

Floor Plan
Floor Plan
Floor Plan

EPC
EPC

Click to view : Brochure

Are you interested in viewing this property?

Please contact us…

Sales: 01403 252222 or Lettings: 01403 252200