Grayland Farm Barns, Langhurstwood Road, Horsham, West Sussex.

Guide Price £450,000

Available
Bedrooms

3

bedrooms

Bathrooms

2

bathrooms

Receptions

2

receptions

PRICE RANGE £450,000 - £475,000 A highly individual barn conversion with flexible accommodation, beautifully presented throughout and located just North of Horsham town in an easily accessible yet semi rural position.
  • HIGHLY INDIVIDUAL BARN CONVERSION
  • NO CHAIN
  • UNDERFLOOR HEATING
  • CAR BARN & PARKING AREA
  • COMMUNAL GARDEN
  • PRIVATE GARDEN
  • FITTED KITCHEN
  • TWO LUXURY BATHROOMS
  • TWO DOUBLE BEDROOMS IN ADDITION TO A MEZZANINE ROOM
  • VAULTED CEILINGS WITH EXPOSED TIMBER BEAMS
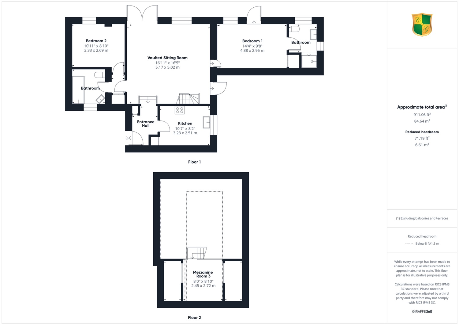
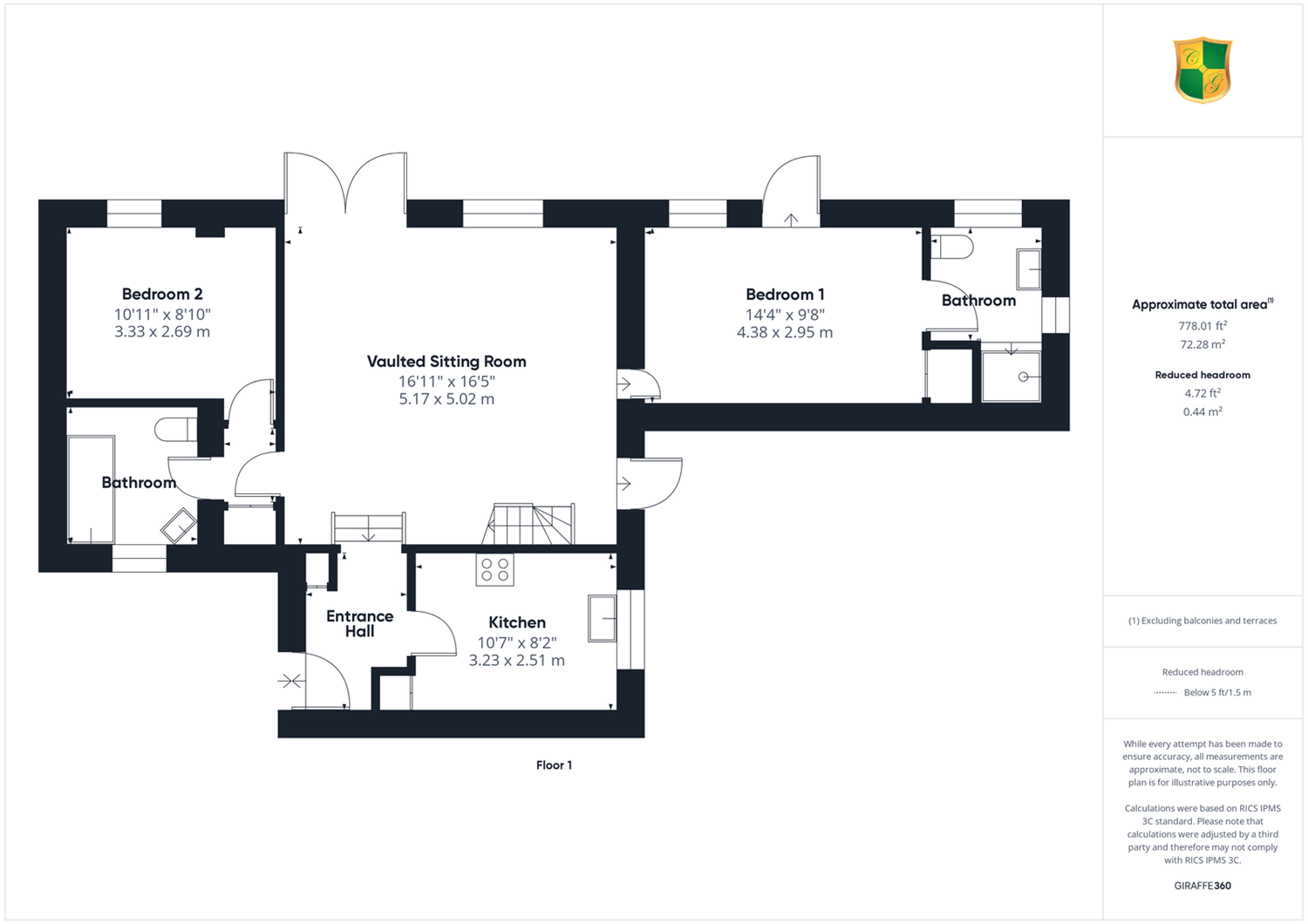
PRICE RANGE £450,000 - £475,000 This delightful character residence is situated within a bespoke development of converted barns. The property having just undergone complete redecoration, boasts good size living accommodation, featuring a large light and airy living/dining room with high vaulted and beamed ceiling, a principal bedroom with a luxury en-suite shower room, second bedroom with adjoining luxury bathroom and a modern, fitted kitchen with built in appliances. Above the living/dining room is a mezzanine study, access to which is from a purpose built metal framed paddle staircase. There is zoned electric underfloor heating as well as surround sound and satellite cabling. The property also features a good sized enclosed garden and within the development there is a large forecourt for parking. Graylands Farm Barns is located just to the North of Horsham off the A264 and is within a short walk of Warnham Station for journeys for London and the coast.

The accommodation comprises:

Wooden paneled Front Door with stained glass window opening to

Entrance Hall

Broom cupboard housing consumer unit and electric meter.

Kitchen

Double glazed rear aspect. Fitted with a range of base and drawer units as well as wall mounted cupboards in cream Shaker style finish having wooden block worktop surfaces with ceramic tiled splashbacks incorporating an electric touch control hob with extractor hood over, one and a half bowl single drainer stainless steel sink with monobloc tap, Gaggenau electric oven, integrated Beko dishwasher, Blomberg washing machine, Hotpoint fridge/freezer, ceramic tiled flooring with zoned underfloor heating, downlighting and pelmet lighting.

From the hall steps lead down to a

Vaulted Sitting/Dining Room

With twin double glazed side aspect French doors and double glazed door to the rear garden. Featuring high vaulted ceiling with exposed beams, built in corner display units, media console, twin satellite cable, zoned under floor heating, staircase to

Mezzanine Study

With double glazed skylight, zoned underfloor heating, ample power points and large eaves storage cupboards.

Bedroom 1

Double glazed side aspect with double glazed door to outside. Built in wardrobe cupboards with overhead storage, TV and telephone point, zoned underfloor heating.

En-Suite Shower Room

Frosted double glazed double aspect to the side and rear. Raised oversized shower cubicle with Aqualisa digital shower control, wall bracket and hand shower, glass screen. Vanity unit with wash hand basin having chromium mixer tap with drawer under, back to wall WC with dual flush, porcelain tiled walls and flooring with zoned under floor heating, chromium towel warmer, downlighting.

From the Living Room a door leads to an Inner Hall with airing cupboard housing Mega flow hot water cylinder and shelving.

Bedroom 2

Double glazed side aspect. TV and two telephone points, exposed beam, zoned underfloor heating.

Bathroom

Frosted double glazed side aspect. Tiled panel bath with chromium mixer tap and shower attachment, corner vanity unit with inset wash hand basin having chromium mixer tap and cupboard under, mirrored cabinet, back to wall WC, chromium towel warmer, two wall lights, exposed beam, ceramic tiled wall and floors, zoned underfloor heating.

OUTSIDE

There is an enclosed rear garden with large area of raised timber decking, slate bed and garden.

Located within the development is an area designated for residents parking only and each property has their own car barn.

To the rear of the development there are communal gardens for the exclusive use of the residents.

Service Charge

There is an Estate Management Charge £900 per annum.

Council Tax Band - D

Referral Fees: Courtney Green routinely refer prospective purchasers to Nepcote Financial Ltd who may offer to arrange insurance and/or mortgages. Courtney Green may be entitled to receive 20% of any commission received by Nepcote Financial Ltd.



NOTE: These particulars are intended only as a guide to prospective Buyers/Tenants to enable them to decide whether to make further enquiries with a view to taking up negotiations but they are otherwise not intended to be relied upon in any way for any purpose whatsoever and accordingly neither their accuracy nor the continued availability of the property is in any way guaranteed and they are furnished on the express understanding that neither the Agents nor the Vendors are to be or become under any liability or claim in respect of their contents. Any prospective Buyer/Tenant must satisfy himself by inspection or otherwise as to the correctness of the particulars contained.

Floor Plan
Floor Plan
Floor Plan

EPC
EPC

Click to view : Brochure

Are you interested in viewing this property?

Please contact us…

Sales: 01403 252222 or Lettings: 01403 252200